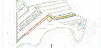
Lucena prevé invertir cerca de 100.000 euros en la construcción de un cementerio ecológico
El concejal de Obras y Cementerios del Ayuntamiento de Lucena (Córdoba), César del Espino, ha anunciado este lunes, 1 de agosto, que en los próximos días saldrá a licitación la construcción del nuevo cementerio ecológico de la localidad, una propuesta incluida en los acuerdos de presupuestos, valorada en 99.540.84€ y que cuenta con un plazo … Sigue leyendo Lucena prevé invertir cerca de 100.000 euros en la construcción de un cementerio ecológico
Copia y pega esta URL en tu sitio WordPress para incrustarlo
Copia y pega este código en tu sitio para incrustarlo